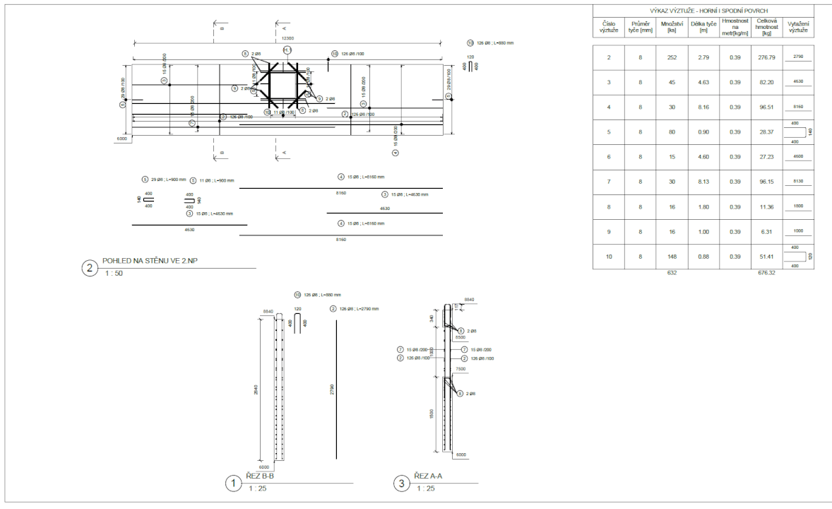
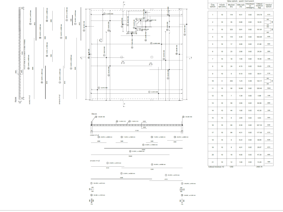
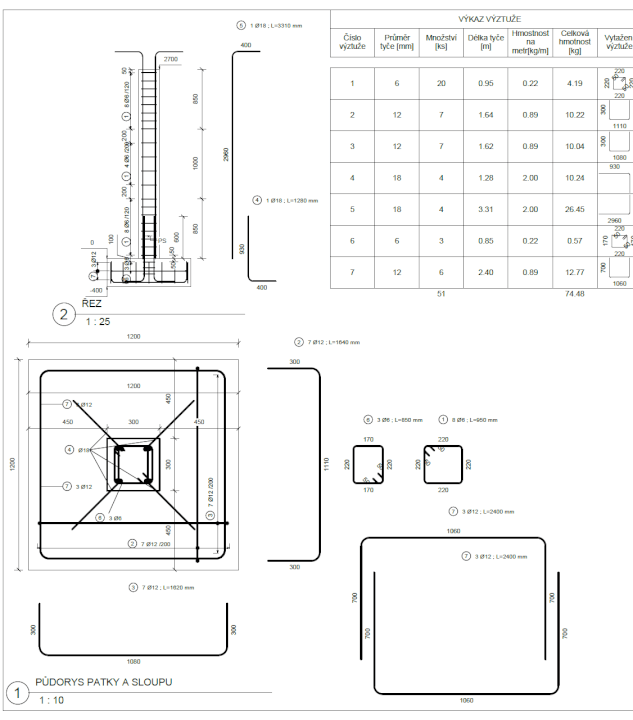
-Výkresy výztuže
Jsem student Fakulty stavební VUT, obor Betonové konstrukce, a nabízím zpracování výkresů výztuže v programu Revit 2026. Zaměřuji se na menší zakázky – rodinné domy, garáže nebo menší bytové domy.
-Co nabízím:
Výkresy výztuže (železobeton) zpracované v Revitu 2026
Výstupy ve formátech PDF, DWG, RVT a Excel (výkaz výztuže)
Možnost i 3D modelů po domluvě
Práce podle dodaného statického výpočtu nebo jednoduchého náčrtu
Samostatné řešení běžných konstrukčních zásad (kotvení, stykování, třmínky, zhuštění výztuže atd.)
-Spolupráce i pro realizační firmy:
Pokud vám projektant nedodal výkresy výztuže, nebo potřebujete doplnit podklady ke statice pro armování na stavbě, rád je připravím dle vašich požadavků.
-Cena: 180 Kč / hodina
U jednodušších zakázek nebo při dlouhodobé spolupráci možnost domluvy na paušální částce.
-Co potřebuji k práci:
Ruční náčrt nebo DWG podklad
Statický výpočet (ideálně přehledný)
Specifika, pokud máte zvláštní požadavky
⏱ Dodání:
Záleží na rozsahu, obvykle do několika dnů. Preferuji menší a středně velké zakázky.
-Komunikace:
Přes Stovkomat zprávy nebo e-mailem – dle dohody.
