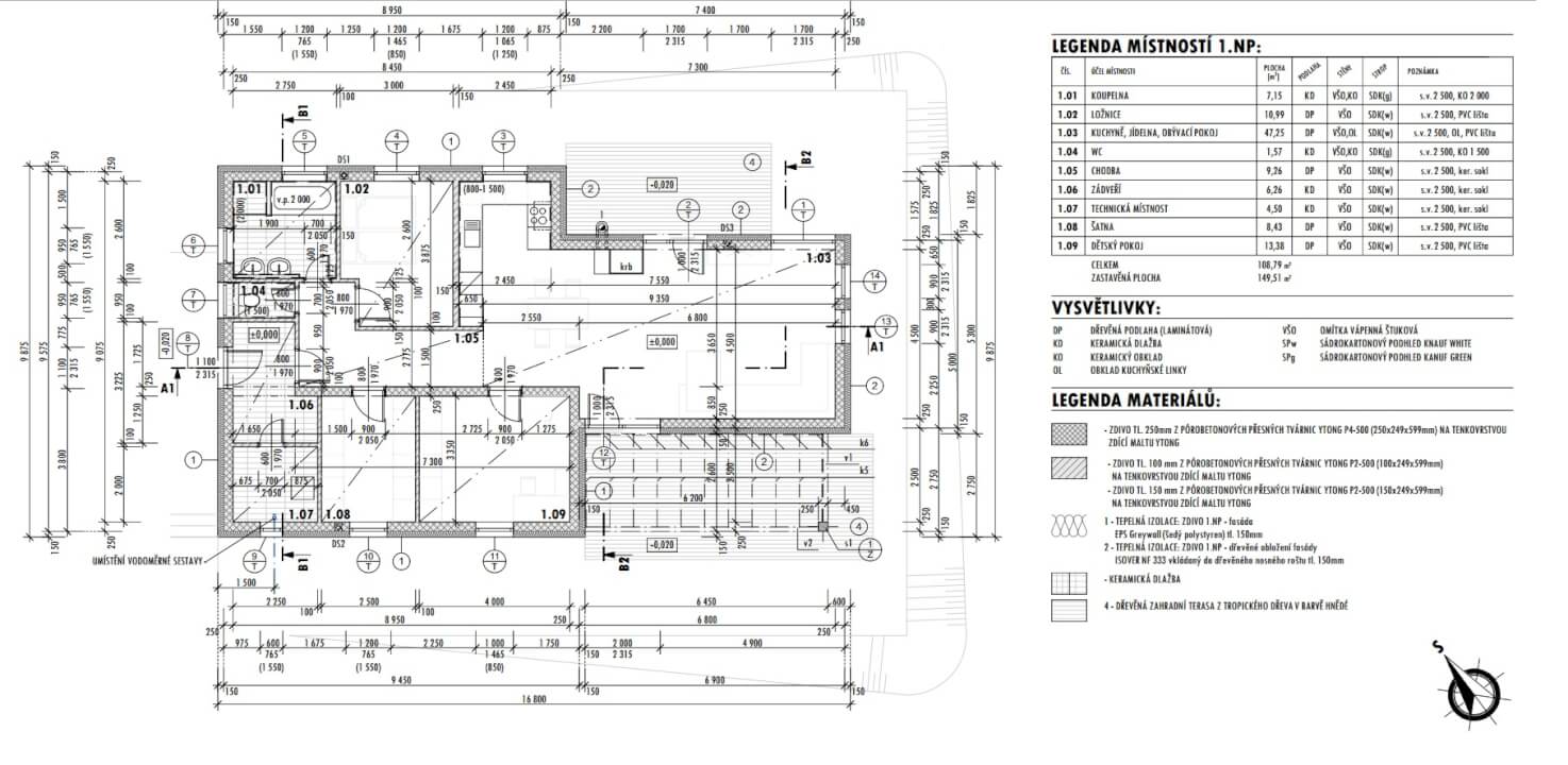
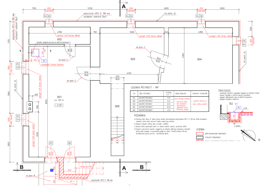
Překreslování technických výkresů, fotek, skic a náčrtů do rýsovacího programu. Možnost tvorby menších a jednodušších vizualizací staveb. Půdorysy bytů, domů. Kreslení v autocadu.
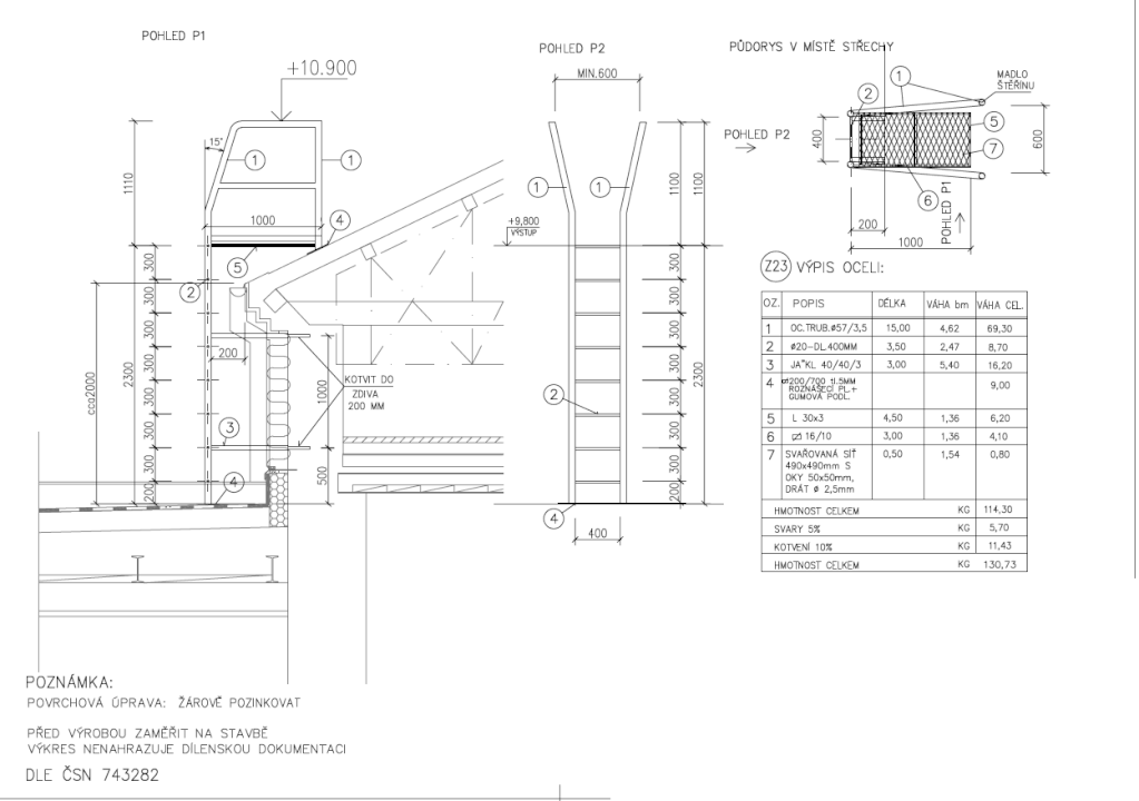
Vymodelování strojařských komponentů a vytvoření dílenských výkresů také.
Překreslování všelijakých náčrtů, klidně technických i netechnických, strojních... Mým mateřským oborem je stavebnictví. Zde mohu nabídnout i zkušenosti z projekčních kanceláří při tvorbě projektových dokumentací staveb.
Výstup možný jako .dwg či .pdf či JPG
Před zakoupením mě prosím kontaktujte. Každý výkres má jiné specifika a složitost, proto je lepší předběžná konzultace a kalkulace upravená na míru vašemu projektu.

Velmi rychlé dodání, okamžitá komunikace, ochota. Děkuji.
Jo paráda spokojenej, díky.
Velmi děkuji za zpracování a pomoc. Vše na jedničku. Rychlost, preciznost, kvalita. Lenka
Vše naprosto v pořádku. Skvělá komunikace, velká flexibilita a rychlost. Děkuji za provedenou práci a doporučuji.
Perfekt
Děkuji v pořádku.
S pozdravem
Tomáš Guryča
CEO Gukon Technologies
Super práce. Rychlé a kvalitně. Doporučuji všem.
Výsledek perfektní, komunikace výborná, vřele doporučuji.
Děkuji za práci. je to ideální.
Jsem spokojená