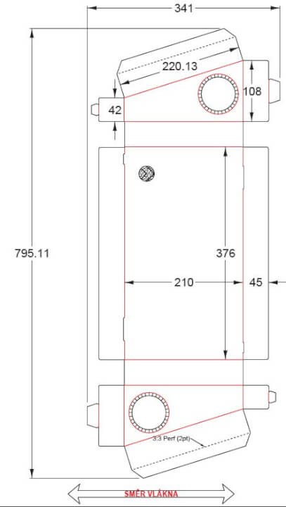
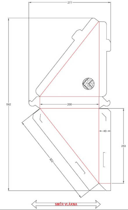
Nabízím kontrukční návrh papírových obalů na vaše zboží včetně výkresové dokumentace a 3D náhledu
To, co vznikne z nápadu grafického designéra, musí odpovídat reálným možnostem výroby.
Některé návrhy vypadají skvěle ve fázi grafického návrhu, ale v praxi stanoví obrovské problémy (navíc s sebou přinášejí i velké finanční náklady).
Nabízí se však i další důležitá otázka, bude tato neokoukaná krabička splňovat všechny požadavky pro její doručení?
Aspekt, který se týče produkce je stejně důležitý, jak jeho čište grafický návrh. Pokud přemýšlíte o vlastním návrhu, musíte mít na paměti i tyto věci:
Materiály
Výsledný efekt tisku
Praktičnost
Odolnost zvoleného materiálu
Hmotnost obalu
Dodací požadavky a standardy
Omezení a náklady přepravy v zemích, do kterých produkty posíláte
I s tímto vším vám rád poradím a navrhnu to nejlepší řešení právě pro vás a vaše zboží.

Dobre
za mě ok !!! opět poprosím o cenovku :-)